Rif: mlcand83
MILANO
MILANO - zona Bovisa
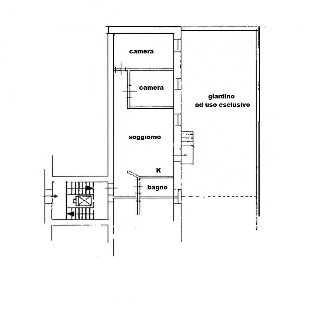
Via Candiani 83, di fronte all'ingresso del Politecnico della Bovisa, proponiamo in ESCLUSIVA, all'interno di un bellissimo condominio anni '70, un monolocale con cucina a vista, posto al piano rialzato e affacciato sul giardino interno. Luminosissimo e silenziosissimo. Composto di: ingresso ampio locale ben diviso in zona notte/cucina soggiorno, balcone, bagno con doccia. IRRESISTIBILE!!! Solo a persone referenziate e con reddito documentabile. Per gli studenti è richiesta la cointestazione del contratto di locazione con un genitore e con firma in PRESENZA. Euro 750,00 oltre spese condominiali Contatto diretto agente immobiliare 336480615
Consistenze
| Descrizione | Superficie | Sup. comm. |
|---|---|---|
| Principali | ||
| Immobile - piano rialzato | 37 Mq | 37 Mqc |
| Totale | 37 Mqc | |






